農村蓋房不愁,10套經典戶型任挑,2,3,4套造價只要18萬!
現在建造房子戶型選擇太多了,幾百套戶型在面前,挑的的眼花繚亂。既要美觀大氣,同時又要考慮到造價,于是往往不知選擇建造什么樣的戶型?對于建房的朋友都存在這樣的煩惱,在這里下面小編給出10套農村別墅戶型圖,其不含室內裝修造價在三十萬左右,第2、3、4套造價更是只要18萬,希望能給大家一個很好的選擇。
漂亮的二層帶露臺雙拼別墅


編號: DC0377
結構形式: 磚混結構
開間: 15.6米 進深: 11.4米
占地面積: 176.8平方米
建筑面積: 380.4平方米
主體造價: 35-40萬


一 層:客廳、臥室、廚房、餐廳、衛生間
二 層:起居室、臥室(附露臺)、臥室(附陽臺)、衛生間
農村二層實用小別墅



編號: DC0376
結構形式: 磚混結構
開間: 10.2米 進深: 9.9米
占地面積: 104.16平方米
建筑面積: 220.31平方米
主體造價: 18-22萬


一 層:門廳、客廳、2臥室、廚房、餐廳、衛生間
二 層:起居室、臥室(附書房)、臥室(附露臺)、2臥室、衛生間
農村二層經濟型小別墅



編號: DC0375
結構形式: 磚混結構
開間: 11米 進深: 10米
占地面積: 114.62平方米
建筑面積: 210.85平方米
主體造價: 18-22萬


一 層:門廳、客廳、2臥室、廚房、餐廳、衛生間
二 層:娛樂室、臥室(附露臺)、2臥室、書房、衛生間、露臺
實用經濟型一層小別墅

編號: DC0371
結構形式: 磚混結構
開間: 14米 進深: 11米
占地面積: 158.6平方米
建筑面積: 188.6平方米
主體造價: 18-22萬

一 層:門廳、客廳、臥室(附衛生間)、3臥室、廚房、餐廳、衛生間
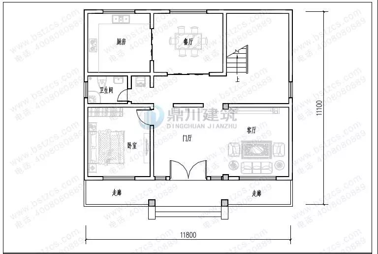
二層帶陽臺農村小別墅


編號: DC0374
結構形式: 磚混結構
開間: 11.8米 進深: 11.1米
占地面積: 136.53平方米
建筑面積: 303.36平方米
主體造價: 26-30萬
首層戶型:

二層戶型:

一 層:門廳、客廳、臥室、廚房、餐廳、衛生間
二 層:起居室(附陽臺)、3臥室、娛樂室、衛生間
農村三層小戶型自建房

編號: DC0372
結構形式: 磚混結構
開間: 11.3米 進深: 7.8米
占地面積: 94.85平方米
建筑面積: 271.98平方米
主體造價: 24-28萬
首層戶型:

二層戶型:

三層戶型:

一 層:門廳、客廳、臥室、廚房、餐廳、衛生間
二 層:起居室、娛樂室(附陽臺)、3臥室、衛生間
三 層:起居室、茶室、2臥室、衛生間、露臺
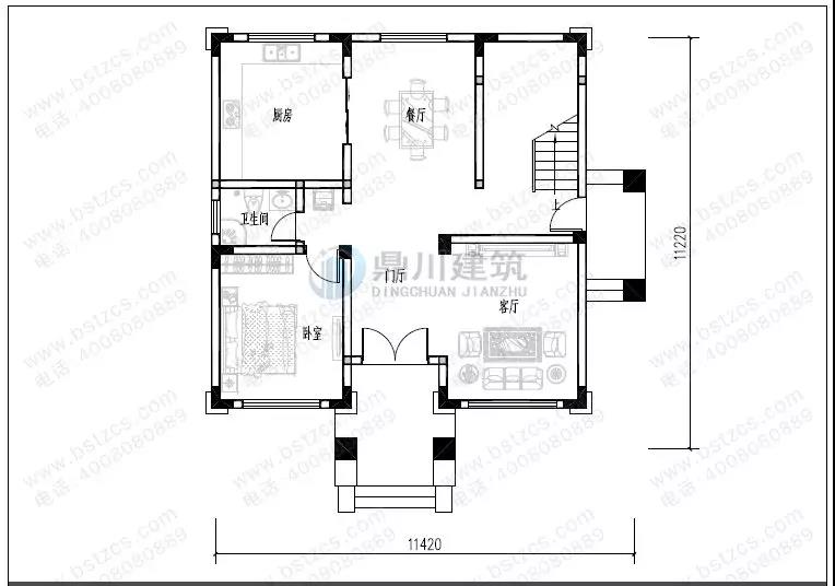
歐式三層復式客廳小別墅

編號: DC0370
結構形式: 框架結構
開間: 11.42米 進深: 11.22米
占地面積: 115.18平方米
建筑面積: 313.68平方米
主體造價: 30-35萬
首層戶型:

二層戶型:

三層戶型:

一 層:門廳、客廳(中空)、臥室、廚房、餐廳、衛生間
二 層:起居室(附陽臺)、3臥室、衛生間、陽臺
三 層:娛樂室、3臥室、衛生間、露臺
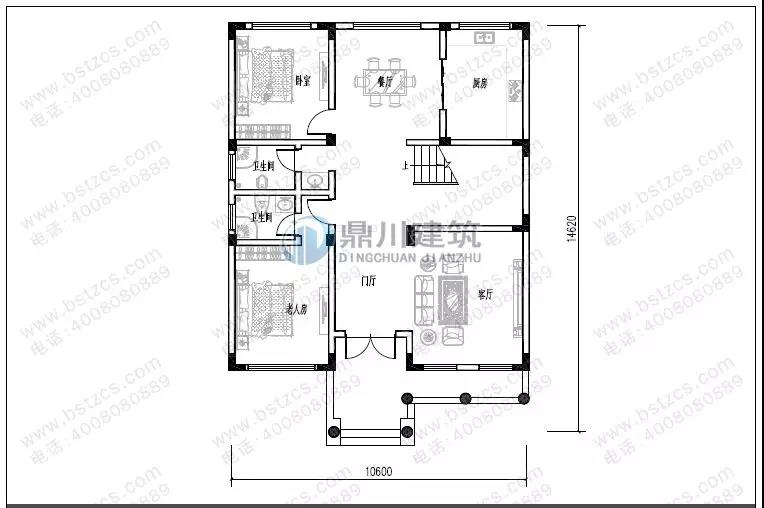
漂亮的三層帶露臺農村小別墅
.jpg)
編號: DC0358
結構形式: 框架結構
開間: 10.6米 進深: 14.62米
占地面積: 149.18平方米
建筑面積: 391.43平方米
主體造價: 40-45萬
首層戶型:

二層戶型:

三層戶型:

一 層:門廳、客廳、臥室(附衛生間)、臥室、廚房、餐廳、衛生間
二 層:客廳、茶廳、臥室(附衛生間,陽臺)、臥室(附書房)、臥室、衛生間
三 層:臥室(附衛生間)、健身房、衛生間、露臺
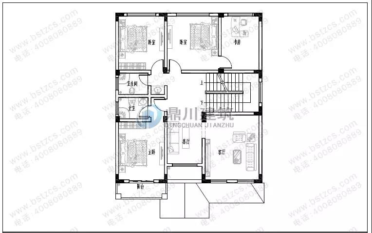
新農村二層別墅

編號: DC0359
結構形式: 磚混結構
開間: 14.4米 進深: 12.6米
占地面積: 180.6平方米
建筑面積: 368.8平方米
主體造價: 30-35萬
首層戶型:

二層戶型:

一 層:門廳、客廳、臥室(附衛生間)、2臥室、廚房、餐廳、儲物間、衛生間
二 層:起居室(附陽臺)、娛樂室(附陽臺)、臥室(附衛生間)、3臥室、書房、衛生間
二層帶車庫農村別墅

編號: DC0368
結構形式: 磚混結構
開間: 14.6米 進深: 12.65米
占地面積: 177.17平方米
建筑面積: 409.85平方米
主體造價: 33-38萬
首層戶型:

二層戶型:

一 層:門廳、客廳、臥室(附衛生間)、臥室、廚房、餐廳、衛生間、車庫
二 層:起居室、娛樂室(附露臺)、臥室(附書房,陽臺,衛生間)、3臥室、衛生間
農村建房要隨著時代而進步,傳統的老三間民房,早就應該淘汰了,現在農村都開始建起了洋樓別墅,建出來漂亮大氣,而且住起來各空間布局合理,上面10套別墅戶型如果是你想要的,那就收藏起來吧。
.jpg)
本文由別墅圖紙超市編輯發布,如需了解更多,可登錄網站主頁http://www.sbmepj.com/,或者撥打我們的免費電話400-8080-889在線咨詢。
>>>>推薦閱讀:10款經典火爆的農村自建別墅,建成后的實物圖比效果圖還美!
>>>>推薦閱讀:12款占地不足百平農村別墅,有二層的,有三層的,經濟又實用!
>>>>推薦閱讀:30余款最新設計:造型大方又體面,都是適合老百姓建的好房子!